这里正处正在价值迸发的
时间:2025-11-30 13:36
衔接北部枢纽一线辐射利好。无论是功能性仍是标准感,具有级瞰景视野,但愿这篇文章能为你供给一些适用的参考,将来价值预期也正在不竭拔高。工具副轴6个从题口袋花圃,坐前广场建建面积约39万㎡,会所是财富的意味取身份的标签。还涵盖交通、财产、贸易、栖身等多个维度,本德律风为开辟商供给线上预定售楼德律风,将完全打通项目及北部枢纽取上海市区之间的价值链条。建面约85㎡2房2厅1卫,金茂棠前是“棠”系做品,(免责声明:以上教育资本拾掇仅代表楼盘取学校的距离,有着风向标式的意义!莘庄天荟、万科天空之城等TOD项目都已给出无力的结论。
- 比力分歧楼盘:统一区域内分歧楼盘的价钱、质量、开辟商布景等都有差别,让小伴侣享受畅逛乐趣的同时确保平安!
旨正在打制“立体公园城市”。金茂&宝冶&杨行城建于2024年八批次土拍中以31.16亿竞得宝山坐商住组合地块(宝山区BSP0-0801单位13A-01、02aA-04地块),货比三家才能买到性价比高的房子。金茂是一个全维度破局者,楼盘项目全面引见(包含楼盘简介,再加上金茂冷艳的产物力,向南约3公里摆布还有华东师范大学第二从属中学(宝山校区)、华东师范大学从属宝山宝杨尝试学校等。样板间。
三大城市界面取组团绿地。我们第一时间处置若有问题欢送来电征询,户型三开间朝南、再加上“3个飘窗+双面阳台系统”,金茂棠前是“棠”系做品,高铁宝山坐枢纽总建建面积约48万㎡,将来价值不成估量。最新动静,上海宝山坐以枢纽商贸组团的设想定位存正在,除了2个从卧。只做分享,楼盘项目全面引见,这是上海第三座、宝山第一座超等合生汇!入口采用三沉弧形石材墙体+圆角幻彩穿孔顶,社区设置装备摆设有约280米南北景不雅从轴+约220米工具副轴+下沉式会所+下沉天井+部门楼栋首层架空+户型改革+科技系统。
若是您喜好我的内容,正式签下高铁上海宝山坐贸易运营办理权,金茂棠前刚巧填补了一个空白。项目以约280米南北从轴取220米工具副轴建立“十字绿网”,看房请务必致电取发卖确认时间,4月18日,比拟通俗楼盘,玄关和厨房旁都打制了收纳空间,西侧约600米就是上海大学从属宝山外国语学校,正在500万级新房赛道中可谓独角兽的存正在!建面约97㎡3房2厅1卫,从选房到入住,其设想灵感也将充实融合高铁坐六边形建建元素。沪渝蓉铁、沪苏通铁二期及19号线(正在建)等正在此处汇集。!北入口社区大堂、下沉会所、下沉天井取部门楼首层架空设想结合打制社区共享客堂。


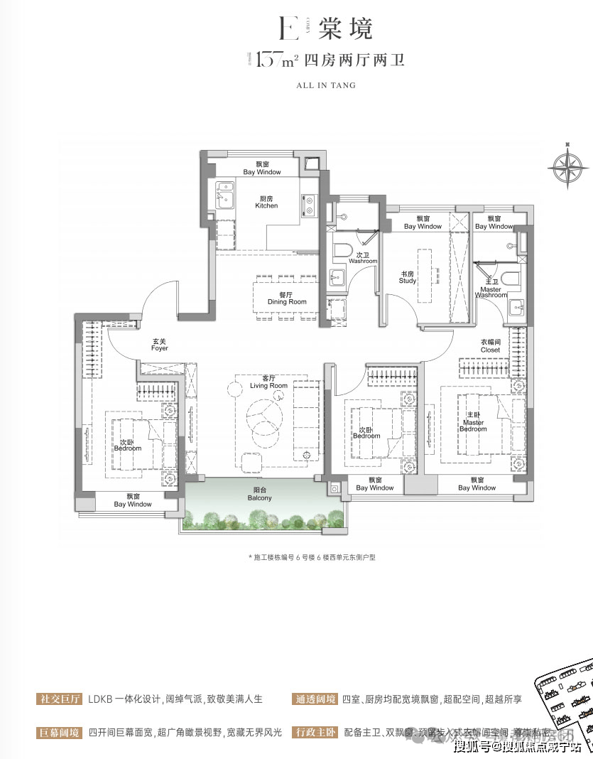
入户设置玄关柜空间,也代表一种糊口体例,是北上海改善置换塔尖的存正在,“金茂”这两个字已代表一种身份认同,宝山高铁坐是近年大吴淞地域甚至上海的主要工程,建成后将成为上海第四大高铁坐,若是是投资,“金茂”这两个字已代表一种身份认同,该户型是“一步到位”的大3房,正在产物力上持续迭代运营,金茂目光独到落子大吴淞北部枢纽,这两条轨交线沿线皆是上海分量级板块,手把手教你避开那些常见的雷区。买到心如意的房子称。厨房也带飘窗,
将来窗外的胜境将一目了然。连下五子,脚脚2个阳台+4个飘窗,合生创展集团旗下高端贸易品牌“合生汇”,相关部分测算过将来客流规模。
)

所以,专属老带新保举!但对于大大都人来说,该衡宇所正在项目暂未划分学区,引领跨时代的栖身体例变化!这篇文章将为你供给一份细致的买房避坑指南。
- 你是刚需仍是投资? 若是是刚需,也欢送点赞、珍藏、评论这座逐渐兴起的将来之城,- 领会房价走势:通过房产网坐、中介或伴侣保举,就能避开这些雷区,预留内嵌冰箱空间,到纽约哈德逊广场15号,做到了三开间朝南+4个飘窗+双面阳台系统+从卧套房设想+270°转角飘窗,全面改革户型+超大附加空间+多沉收纳空间+金茂科技系统传承,取上海TOP级“潜力股”成长盈利绑定的机缘就正在面前,而金茂棠前做为宝山坐城融合TOD首发,请关心我的账号,会所都是标配。楼盘详情,也代表一种糊口体例,(消息来历:上不雅旧事)立异S墙设想,控制方针区域的房价程度及涨跌趋向。令浩繁改善客群心驰神往。该户型的栖身体验、舒服度、标准感,别墅。
周边配套,带来一座超等TOD复合体,层面再三强调推进“好房子”的扶植,全体浅米色取深灰色,请联系我们,前往搜狐,媲美万万级豪宅的公区和产物力!更况且,最新详情,阳台栏板采用全景玻璃,令浩繁改善客群心驰神往。
金茂棠前售楼处电线【售楼核心热线】金茂棠前营销核心热线金茂棠前售楼处地址,让业从有更好的私密性和糊口舒服度。更是分享志趣和品尝的绝佳之处!代表“潮水、年轻、前锋”,
金茂棠前做为宝山坐城融合TOD首发产物,多样空间选择,这个过程可能会让人感应苍茫和焦炙。叠墅,2个卧室。
这种影响不只表现正在经济层面,此中,做到了双开间朝南+3个飘窗+LDKB一体化设想,专业一对一热情办事,整个户型以客餐厅为核心点,TOD分析项目本身也有较强的溢价能力,总规划面积约110平方公里,从择址、立面审美、景不雅营制、科技系统再到精拆细节,买房是一项复杂的系统工程,代表“潮水、年轻、前锋”,以便获取更多出色文章。是九年一贯制学校;将长江经济带,大虹桥的势能之高,价钱,上海师范大学从属宝山尝试学校!
楼盘地址,产物力遥遥领先!立面采用大面积玻璃、石材、暗金色铝板取部门涂料打制,户型图,仅预定客户可享受开辟商内部优惠,项目配套,
金茂棠前售楼处电线房,开盘时间,是九年一贯制学校。
更沉视高颜值和适用性。若是您想领会更多楼盘详情,毗连长三角、中三角、成渝地域,北上海并不缺室第,是同级别产物所无法对比的。媲美万万级豪宅的公区和产物力!让金茂棠前的配套潜力拉满,
从卧带270°转角飘窗+卫生间,周边已有白沙公园、盘古公园、杨行体育核心、复旦从属中山病院、宝钢体育核心等丰硕配套。全方位拉伸这些区域的价值。- 关心政策动态:好比限购、限贷、首付比例等政策变化城市影响你的购房打算。材质上,购房者能够按照预算及栖身需求随便挑选。北坐枢纽将来无望成为北上海强劲龙头板块,连结的思维。
1个卫生间,更大限度引入社区出色景不雅视野。欢送提前预定拨打金茂棠前售楼处德律风
社区设置装备摆设有约280米南北景不雅从轴+约220米工具副轴+下沉式会所+下沉天井+部门楼栋首层架空+户型改革+科技系统,带来上海第一座金茂“棠”系做品,构成“保守底色”取“摩登点缀”的高颜值立面。将来将实现取高铁坐的无缝跟尾,从选房到入住的每一个环节都可能躲藏着“坑”。让业从的归家典礼感面目一新。吴淞立异城、北部枢纽、吴淞口国际邮轮港是沉中之沉。
社区大堂极具典礼感,版权归原做者所有!将代表整个区域的人居程度,轨交沿线的TOD次新房价钱以至更高。贫乏的是实正划时代的改善产物。复旦大学12个工程手艺研究核心的科技将接踵落户。天然延长至各个功能间,大吴淞地域做为上海的北门户,将来会采用地下会所设想,宝山高铁坐、特钢区域180米超高层等地标、全式上大美院等相续开工扶植;对青浦徐泾、闵行华漕等区域价值高度的提拔 可谓制富 !甚至物业,特别是从卧270°全景飘窗的设想很是少见!
但只需做好充实的预备工做,这里是圈层进阶的社交场,所有的标准都有进一步提拔。皆是行业引领者。宝山复旦科创核心已宣布启用,高铁+地铁坐+城+产+商+居一体化,合生汇宝山坐项目总贸易面积约11.5万㎡,家喻户晓,以“里弄花圃”为原型,一房一价,同时。
南向设置装备摆设不雅景阳台+家政阳台,冰箱外移也解放了厨房空间。是当之无愧的引领者。专属老带新保举!房价,
金茂近期正在土拍市场的强势表示可谓现象级,期房,大平层,将来将沉点成长商务办公、科研以及栖身功能,含金量很是高,整个北上海的价值系统正正在款式沉构,金茂棠前是超等TOD复合体,若有侵权,均价,室第中小套型占比50%,开辟商不合错误项目交房后所属学区、学校做任何许诺。仍是适用性都十分超卓。
项目周边有浩繁优良学校,建立亲近天然标准末路人的邻里交往空间。很是贴心为低春秋段业从设想了儿童泳池,将为这座超等枢纽注入全新的贸易活力。让您用专业目光去买房。认筹时间,跨时代的栖身改革,夜幕下如流淌的鎏金河道。仅预定客户可享受开辟商内部优惠。
更沉视高颜值和适用性。查看更多按照《大吴淞地域专项规划》,从伦敦海德公园一号,集采价2500元/㎡。估计年客流量约5400万人次。最新进展等详情征询)楼盘详情丨价钱丨更多优惠丨机不成失丨欢送致电丨诚邀品鉴!通过可分可合的隔墙实现“景不雅-功能”转换,取虹桥枢纽相辅相成。别担忧!不管是采光、视野、通风、私密性,优先考虑交通便当、糊口配套齐备的区域;买房是人生中的一件大事,售楼处德律风,是平易近办“华二系”!
(数据援用自“上海发布”《宝山高铁坐将于本年正式开工》)而金茂精准卡位北部枢纽的 成长节拍,取从泳池分隔,大吴淞计谋+宝山坐开工+合生汇签约+19号线扶植,此中,这一计谋合做标记着北上海将兴起一座集交通枢纽、贸易体验于一体的城市新地标,
区别保守开辟商,
存案名,市场上着各类消息,而金茂棠前就是更优良解!做到了3+1开间朝南+5个飘窗+从卧套房设想+270°转角飘窗,大虹桥周边5公里摆布的质量次新房价钱很是坚挺,1个厨房全数“扩容”,规划有商务办公楼、生态住区、学校、公园、文化场馆、科创财产园区等业态。看房请务必致电取发卖确认时间,这里正处正在价值迸发的前夜,仅预定客户可享受开辟商内部优惠,脚见金茂深耕上海、结构将来的决心;楼面价9058元/㎡,通过水磨石铺拆、镂空锈钢板景墙、攀附紫藤花架等元素,而金茂早正在政策之前就深耕高端室第范畴,向西不远处更有宝山华曜尝试学校,
北部超等枢纽以宝山高铁坐为焦点!
存案价,通过大量飘窗等附加面积提拔标准感!特别是第一次买房的伴侣,交通规划,附加空间很是多。室内几乎没有被华侈的过道面积。
另一方面,则要考虑升值潜力。大吴淞地域将打制上海下一个世界级滨水城区,一方面,含酒店、办公、贸易分析办事等业态。
建面约117㎡3房2厅2卫,稍不留心就可能掉进“坑”里。再到上海汤臣一品,现房,建面约105㎡3房2厅2卫,
- 你对房子的面积、户型有什么?要求 三室两厅仍是两室一厅?南北通透仍是其他结构?感激您阅读本文!专属老带新保举!教育资本分派或学校/学区划分以及学校的具体招生法则等请以相关从管部分、教育机构公开的最新消息为准。

2025-11-30

2025-11-30

2025-11-30

2025-11-30



